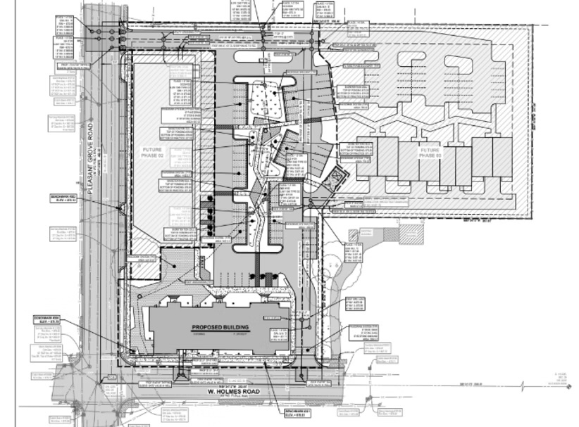
The project will construct a new 30,000 square foot, three-story mixed-use building at the intersection of W. Holmes and Pleasant Grove Roads. The proposed layout includes approximately 5,000 square feet of commercial space and thirty (30) residential units between the first, second, and third floors.
The unit breakdown of the thirty (30) planned residential apartments is as follows:
• fifteen (15) one-bedroom units
• fifteen (15) two-bedroom units.
Total capital investment is estimated at $9,637,106.
Stakeholders
Local residents, Community members, Local government officials, Project developers and investors, Businesses, Memorial stakeholders.
Image Gallery
Location
2130 W Holmes Rd,
Lansing MI 48910






