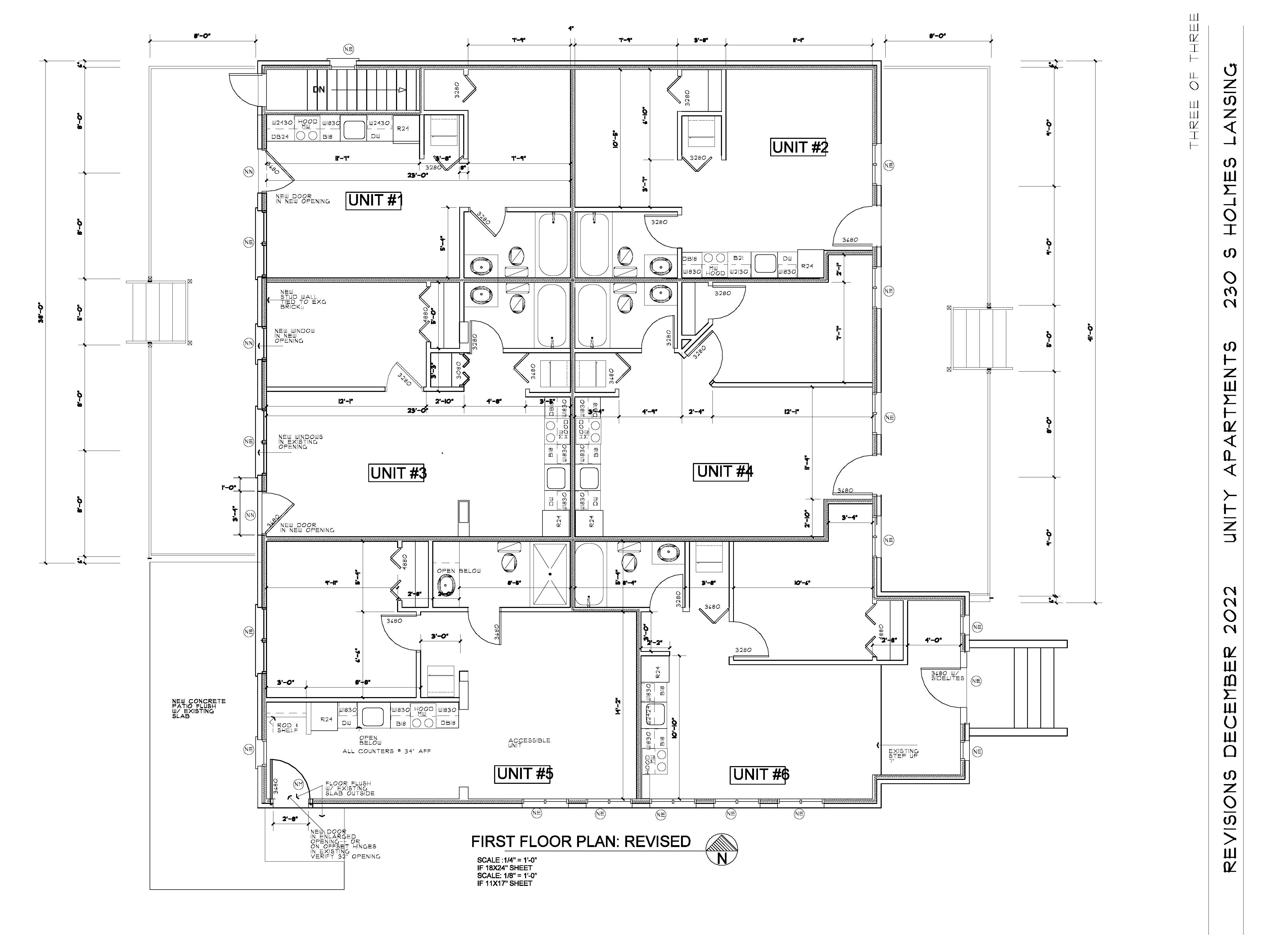
The Unity Apartments redevelopment represents a $640,000 investment in Lansing’s housing future. This adaptive reuse project transformed a fire-damaged, functionally obsolete former church into six multi-family residential units, including one ADA-compliant apartment.
With income-attainable rents and a focus on preserving the building’s historic character, Unity Apartments adds new housing options while breathing new life into a neighborhood landmark — a true example of how creative redevelopment can meet community needs.
Image Gallery
Location
230 S Holmes St,
Lansing MI 48912









